lawn bowls

Burden Park Bowls - Kitchen Upgrade

kitchen plans

Project Overview

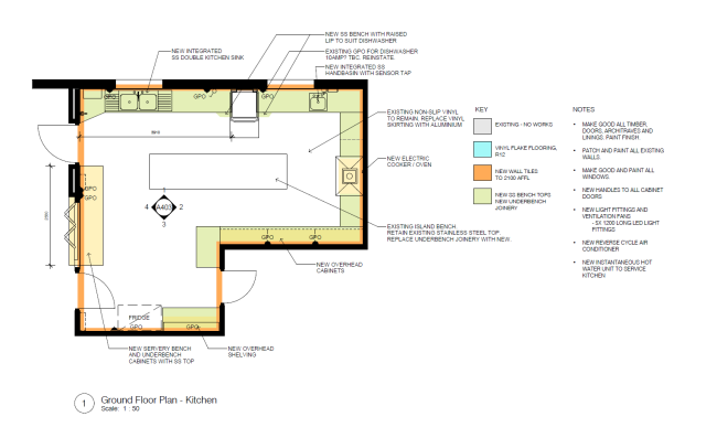
The kitchen upgrade at Burden Park Bowls will consist of the renewal of kitchen bench tops, splash backs, cabinetry and kitchen equipment.

Estimated Completion: June 2022

Timelines and next steps

Construction to commence in March 2022 and is due for completion in June 2022.

Burden Park, Springvale Rd & Heatherton Road, Springvale South VIC 3172, Australia